Интернет-магазин представительского класса
Каталог
Сантехника
Ванны
Раковины для ванной
Душевые ограждения, уголки и поддоны
Унитазы
Смесители
Душ
Инсталляции
Душевые кабины
Полотенцесушители
Мойки и аксессуары
Душевые боксы
Встраиваемые душевые системы
Водонагреватели
Слив
Биде
Писсуары
Сантехнические люки
Распродажа
Готовые решения
Сантехника для людей с ограниченными возможностями
Мебель для ванной комнаты
Комплекты мебели для ванной комнаты
Консоли и столешницы для раковины
Зеркала для ванной комнаты
Зеркальные шкафы для ванной комнаты
Тумбы для ванной
Светильники для ванной комнаты
Полки и модули для ванной
Шкафы навесные для ванной комнаты
Шкафы-пеналы для ванной комнаты
Комоды для ванной комнаты
Банкетки для ванной комнаты
Комплектующие для мебели для ванной комнаты
Аксессуары для ванной комнаты и туалета
Мыльницы
Дозаторы для жидкого мыла
Стаканы для зубных щеток
Держатели для туалетной бумаги
Ершики для унитаза
Крючки для ванной
Вешалки для ванной комнаты
Полотенцедержатели
Полки для ванной
Шторы и карнизы для ванной комнаты
Корзины для белья
Косметические зеркала
Поручни для ванной
Коврики для ванной комнаты
Мусорные ведра для ванной комнаты
Наборы аксессуаров для ванной комнаты
Стойки - наборы держателей
Диспенсеры для ватных дисков
Аксессуары и оборудование для общественных туалетов
Держатели для ванной комнаты
Сушилки для белья
Прочие аксессуары для туалета
Плитка
Керамическая плитка
Керамогранит
Инженерная сантехника
Запорная арматура и фитинги
Водонагреватели
Сантехнические люки
Монтажный профиль TECE
Вода и водоочистка
Фильтры для воды
Краны для питьевой воды
Картриджи и комплектующие
Бассейны
Деревянные бассейны
Мини бассейн
Роботы-пылесосы
Химия для бассейна
Акции
Услуги
Сервисные службы
Установка сантехники
Блог
Бренды
Как купить
Условия оплаты
Условия доставки
Гарантия на товар
Компания
О компании
Новости
Отзывы
Контакты
Партнеры
Сертификаты
Галерея
Контакты
+7 (800) 201-87-48
Заказать звонок
Задать вопрос
Войти
  • Корзина0
  • Избранные товары0
  • Сравнение товаров0
Ваш город
Краснодар
info@ceramicplus.ru
Краснодар, Краснофлотская улица, 13
  • Вконтакте
  • Telegram
  • YouTube
  • Viber
  • Viber
  • WhatsApp
  • Яндекс.Дзен
Ваш город
Краснодар
+7 (800) 201-87-48
Заказать звонок
Краснодар, Краснофлотская улица, 13
Акции
Услуги
  • Сервисные службы
    • Установка сантехники
Блог
Проекты
  • Сантехника
    • ЖК RiverSky - комплектация квартиры
    • Дизайн-проект интерьера загородного дома в КП Федюково — Современные решения
    • Дизай проект квартиры в ЖК "Шаляпин"
    • Дизай проект на Припальном проезде
    • Дом в КП Потапово
    • Капитальный ремонт кинозала Киностудии им.М.Горького
    • ЖК Английский Квартал
    • Стильно и просто
    • Загородный ЖК Park Fonte от Villagio Estate
    • ЖК Большая семерка - квартира
    • 3...2...1... Отправляемся в космос
Как купить
  • Условия оплаты
  • Условия доставки
  • Гарантия на товар
Компания
  • О компании
  • Новости
  • Отзывы
  • Контакты
  • Партнеры
  • Сертификаты
Контакты
+  ЕЩЕ
    Войти
    Каталог
    Сантехника
    Мебель для ванной комнаты
    Аксессуары для ванной комнаты и туалета
    Плитка
    Инженерная сантехника
    Вода и водоочистка
    Бассейны
      • Ванны
      • Раковины для ванной
      • Душевые ограждения, уголки и поддоны
      • Унитазы
      • Смесители
      • Душ
      • Инсталляции
      • Душевые кабины
      • Полотенцесушители
      • Мойки и аксессуары
      • Душевые боксы
      • Встраиваемые душевые системы
      • Водонагреватели
      • Слив
      • Биде
      • Писсуары
      • Сантехнические люки
      • Распродажа
      • Готовые решения
      • Сантехника для людей с ограниченными возможностями
      • Комплекты мебели для ванной комнаты
      • Консоли и столешницы для раковины
      • Зеркала для ванной комнаты
      • Зеркальные шкафы для ванной комнаты
      • Тумбы для ванной
      • Светильники для ванной комнаты
      • Полки и модули для ванной
      • Шкафы навесные для ванной комнаты
      • Шкафы-пеналы для ванной комнаты
      • Комоды для ванной комнаты
      • Банкетки для ванной комнаты
      • Комплектующие для мебели для ванной комнаты
      • Мыльницы
      • Дозаторы для жидкого мыла
      • Стаканы для зубных щеток
      • Держатели для туалетной бумаги
      • Ершики для унитаза
      • Крючки для ванной
      • Вешалки для ванной комнаты
      • Полотенцедержатели
      • Полки для ванной
      • Шторы и карнизы для ванной комнаты
      • Корзины для белья
      • Косметические зеркала
      • Поручни для ванной
      • Коврики для ванной комнаты
      • Мусорные ведра для ванной комнаты
      • Наборы аксессуаров для ванной комнаты
      • Стойки - наборы держателей
      • Диспенсеры для ватных дисков
      • Аксессуары и оборудование для общественных туалетов
      • Держатели для ванной комнаты
      • Сушилки для белья
      • Прочие аксессуары для туалета
      • Керамическая плитка
      • Керамогранит
      • Запорная арматура и фитинги
      • Водонагреватели
      • Сантехнические люки
      • Монтажный профиль TECE
        Монтажный профиль TECE
      • Фильтры для воды
      • Краны для питьевой воды
      • Картриджи и комплектующие
      • Деревянные бассейны
      • Мини бассейн
      • Роботы-пылесосы
      • Химия для бассейна
    Сравнение0
    Избранные товары 0
    Корзина 0
    Сверху над шапкой СБП
    Каталог
    Сантехника
    Мебель для ванной комнаты
    Аксессуары для ванной комнаты и туалета
    Плитка
    Инженерная сантехника
    Вода и водоочистка
    Бассейны
      • Ванны
      • Раковины для ванной
      • Душевые ограждения, уголки и поддоны
      • Унитазы
      • Смесители
      • Душ
      • Инсталляции
      • Душевые кабины
      • Полотенцесушители
      • Мойки и аксессуары
      • Душевые боксы
      • Встраиваемые душевые системы
      • Водонагреватели
      • Слив
      • Биде
      • Писсуары
      • Сантехнические люки
      • Распродажа
      • Готовые решения
      • Сантехника для людей с ограниченными возможностями
      • Комплекты мебели для ванной комнаты
      • Консоли и столешницы для раковины
      • Зеркала для ванной комнаты
      • Зеркальные шкафы для ванной комнаты
      • Тумбы для ванной
      • Светильники для ванной комнаты
      • Полки и модули для ванной
      • Шкафы навесные для ванной комнаты
      • Шкафы-пеналы для ванной комнаты
      • Комоды для ванной комнаты
      • Банкетки для ванной комнаты
      • Комплектующие для мебели для ванной комнаты
      • Мыльницы
      • Дозаторы для жидкого мыла
      • Стаканы для зубных щеток
      • Держатели для туалетной бумаги
      • Ершики для унитаза
      • Крючки для ванной
      • Вешалки для ванной комнаты
      • Полотенцедержатели
      • Полки для ванной
      • Шторы и карнизы для ванной комнаты
      • Корзины для белья
      • Косметические зеркала
      • Поручни для ванной
      • Коврики для ванной комнаты
      • Мусорные ведра для ванной комнаты
      • Наборы аксессуаров для ванной комнаты
      • Стойки - наборы держателей
      • Диспенсеры для ватных дисков
      • Аксессуары и оборудование для общественных туалетов
      • Держатели для ванной комнаты
      • Сушилки для белья
      • Прочие аксессуары для туалета
      • Керамическая плитка
      • Керамогранит
      • Запорная арматура и фитинги
      • Водонагреватели
      • Сантехнические люки
      • Монтажный профиль TECE
        Монтажный профиль TECE
      • Фильтры для воды
      • Краны для питьевой воды
      • Картриджи и комплектующие
      • Деревянные бассейны
      • Мини бассейн
      • Роботы-пылесосы
      • Химия для бассейна
    Акции
    Услуги
    • Сервисные службы
      • Установка сантехники
    Блог
    Бренды
    Как купить
    • Условия оплаты
    • Условия доставки
    • Гарантия на товар
    Компания
    • О компании
    • Новости
    • Отзывы
    • Контакты
    • Партнеры
    • Сертификаты
    Галерея
    Контакты
    +  ЕЩЕ
      Сравнение0
      Избранные товары 0
      Корзина 0
      Телефоны
      +7 (800) 201-87-48
      Заказать звонок
      • Каталог
        • Назад
        • Каталог
        • Сантехника
          • Назад
          • Сантехника
          • Ванны
          • Раковины для ванной
          • Душевые ограждения, уголки и поддоны
          • Унитазы
          • Смесители
          • Душ
          • Инсталляции
          • Душевые кабины
          • Полотенцесушители
          • Мойки и аксессуары
          • Душевые боксы
          • Встраиваемые душевые системы
          • Водонагреватели
          • Слив
          • Биде
          • Писсуары
          • Сантехнические люки
          • Распродажа
          • Готовые решения
          • Сантехника для людей с ограниченными возможностями
        • Мебель для ванной комнаты
          • Назад
          • Мебель для ванной комнаты
          • Комплекты мебели для ванной комнаты
          • Консоли и столешницы для раковины
          • Зеркала для ванной комнаты
          • Зеркальные шкафы для ванной комнаты
          • Тумбы для ванной
          • Светильники для ванной комнаты
          • Полки и модули для ванной
          • Шкафы навесные для ванной комнаты
          • Шкафы-пеналы для ванной комнаты
          • Комоды для ванной комнаты
          • Банкетки для ванной комнаты
          • Комплектующие для мебели для ванной комнаты
        • Аксессуары для ванной комнаты и туалета
          • Назад
          • Аксессуары для ванной комнаты и туалета
          • Мыльницы
          • Дозаторы для жидкого мыла
          • Стаканы для зубных щеток
          • Держатели для туалетной бумаги
          • Ершики для унитаза
          • Крючки для ванной
          • Вешалки для ванной комнаты
          • Полотенцедержатели
          • Полки для ванной
          • Шторы и карнизы для ванной комнаты
          • Корзины для белья
          • Косметические зеркала
          • Поручни для ванной
          • Коврики для ванной комнаты
          • Мусорные ведра для ванной комнаты
          • Наборы аксессуаров для ванной комнаты
          • Стойки - наборы держателей
          • Диспенсеры для ватных дисков
          • Аксессуары и оборудование для общественных туалетов
          • Держатели для ванной комнаты
          • Сушилки для белья
          • Прочие аксессуары для туалета
        • Плитка
          • Назад
          • Плитка
          • Керамическая плитка
          • Керамогранит
        • Инженерная сантехника
          • Назад
          • Инженерная сантехника
          • Запорная арматура и фитинги
          • Водонагреватели
          • Сантехнические люки
          • Монтажный профиль TECE Монтажный профиль TECE
        • Вода и водоочистка
          • Назад
          • Вода и водоочистка
          • Фильтры для воды
          • Краны для питьевой воды
          • Картриджи и комплектующие
        • Бассейны
          • Назад
          • Бассейны
          • Деревянные бассейны
          • Мини бассейн
          • Роботы-пылесосы
          • Химия для бассейна
      • Акции
      • Услуги
        • Назад
        • Услуги
        • Сервисные службы
          • Назад
          • Сервисные службы
          • Установка сантехники
      • Блог
      • Бренды
      • Как купить
        • Назад
        • Как купить
        • Условия оплаты
        • Условия доставки
        • Гарантия на товар
      • Компания
        • Назад
        • Компания
        • О компании
        • Новости
        • Отзывы
        • Контакты
        • Партнеры
        • Сертификаты
      • Галерея
      • Контакты
      • Краснодар
        • Назад

      Инсталляция для унитаза OLI Oli 120 100409m

      Главная
      —
      Каталог
      —
      Сантехника
      Мебель для ванной комнатыАксессуары для ванной комнаты и туалетаПлиткаИнженерная сантехникаВода и водоочисткаБассейны
      —
      Инсталляции
      ВанныРаковины для ваннойДушевые ограждения, уголки и поддоныУнитазыСмесителиДушДушевые кабиныПолотенцесушителиМойки и аксессуарыДушевые боксыВстраиваемые душевые системыВодонагревателиСливБидеПиссуарыСантехнические люкиРаспродажаГотовые решенияСантехника для людей с ограниченными возможностями
      —
      Системы инсталляции для унитазов
      Смывные бачки скрытого монтажаКнопки смываСистемы инсталляции для бидеСистемы инсталляции для писсуаровСпециальные инсталляцииСистемы инсталляции для раковин
      —
      OLI
      —
      Oli 120
      —Инсталляция для унитаза OLI Oli 120 100409m
      Инсталляция для унитаза OLI Oli 120 100409m
      инсталляция для унитаза oli oli 120 100409m
      Инсталляция для унитаза OLI Oli 120 100409m
      инсталляция для унитаза oli oli 120 100409m
      В избранное
      Сравнить
      Артикул: CR14000172578
      OLI
      Характеристики
      Ширина, см
      —
      50
      Высота, см
      —
      135
      Глубина, см
      —
      26
      Коллекции
      —
      Oli 120
      Управление
      —
      Механическое
      Диаметр слива, см
      —
      90
      Все характеристики
      24 013 ₽/шт
      Варианты цен
      24 013 ₽/шт
      Подробности
      Под заказ
      Под заказ
      Наши менеджеры обязательно свяжутся с вами и уточнят условия заказа
      Самовывоз сегодня - бесплатно
      Доставка завтра - от 690 ₽
      Работаем с НДС 20% - подробнее

      Вы можете позвонить нам или написать в чат
      • Telegram
      • WhatsApp
      Интернет-магазин предлагает только информационную услугу. Материалы, фотографии и цены на сайте не являются публичной офертой в соответствии со статьей 437 ГК Российской Федерации.

      • Описание
      • Характеристики
      • Отзывы
      • Как купить
      • Оплата
      • Доставка
      Смывной бачок уже в комплекте
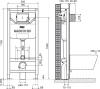
      Система инсталляции для унитазов OLI Oli 120 100409 обладает несущей способностью 400 кг. Выполненный из стали рамный модуль (толщина 2 мм) покрыт эпоксидной эмалью, которая предотвратит коррозию и продлит срок службы изделия. Фановый отвод для слива регулируется по глубине. Объем смыва варьируется до 3–7 литров. Тихую работу обеспечивает клапан набора воды AzorPlus с уровнем шума не более 19 дБ под давлением (соответствует классу 1 по европейскому стандарту NF). Клапан также имеет функцию задержки наполнения, за счет чего экономит до 9 литров воды в день.

      Система инсталляции для унитазов OLI Oli 120 100409

      • Крепится в капитальную стену и пол
      • Экономный слив предполагает две кнопки смыва – для полного и частичного слива бачка
      • объем смывн. бачка: 3 и 6 / 3.5 и 7 л
      • Подвод воды сверху / подвод воды сзади
      • диаметр слива: 9 см
      • монтажная глубина: 12 см
      • монтажная высота: 115 см
      • Межосевое расстояние под крепеж. шпильки: 18 / 23 см
      • гарантия: 10 лет
      • Португалия


      Габариты
      Ширина, см
      50
      Глубина, см
      26
      Высота, см
      135
      О производителе
      Коллекции
      Oli 120
      Страна производства
      Португалия
      О товаре
      Диаметр слива, см
      90
      Управление
      Механическое
      Область применения
      Бытовая
      Особенности
      Метод крепления
      в капитальную стену и пол
      Отзывы
      Нет оценок
      Оставить отзыв
      Загрузка отзывов...

      Для покупки товара в нашем интернет-магазине выберите понравившийся товар и добавьте его в корзину. Далее перейдите в Корзину и нажмите на «Оформить заказ» или «Быстрый заказ».

      Когда оформляете быстрый заказ, напишите ФИО, телефон и e-mail. Вам перезвонит менеджер и уточнит условия заказа. По результатам разговора вам придет подтверждение оформления товара на почту или через СМС. Теперь останется только ждать доставки и радоваться новой покупке.

      Оформление заказа в стандартном режиме выглядит следующим образом. Заполняете полностью форму по последовательным этапам: адрес, способ доставки, оплаты, данные о себе. Советуем в комментарии к заказу написать информацию, которая поможет курьеру вас найти. Нажмите кнопку «Оформить заказ».

      Оплачивайте покупки удобным способом. В интернет-магазине доступно 3 варианта оплаты:

      1. Наличные при самовывозе или доставке курьером. Специалист свяжется с вами в день доставки, чтобы уточнить время и заранее подготовить сдачу с любой купюры. Вы подписываете товаросопроводительные документы, вносите денежные средства, получаете товар и чек.
      2. Безналичный расчет при самовывозе или оформлении в интернет-магазине: карты Visa и MasterCard. Чтобы оплатить покупку, система перенаправит вас на сервер системы ASSIST. Здесь нужно ввести номер карты, срок действия и имя держателя.
      3. Электронные системы при онлайн-заказе: PayPal, WebMoney и Яндекс.Деньги. Для совершения покупки система перенаправит вас на страницу платежного сервиса. Здесь необходимо заполнить форму по инструкции.

      Экономьте время на получении заказа. В интернет-магазине доступно 4 варианта доставки:

      1. Курьерская доставка работает с 10.00 до 19.00. Когда товар поступит на склад, курьерская служба свяжется для уточнения деталей. Специалист предложит выбрать удобное время доставки и уточнит адрес. Осмотрите упаковку на целостность и соответствие указанной комплектации.
      2. Самовывоз из магазина. Список торговых точек для выбора появится в корзине. Когда заказ поступит на склад, вам придет уведомление. Для получения заказа обратитесь к сотруднику в кассовой зоне и назовите номер.
      3. Постамат. Когда заказ поступит на точку, на ваш телефон или e-mail придет уникальный код. Заказ нужно оплатить в терминале постамата. Срок хранения — 3 дня.
      4. Почтовая доставка через почту России. Когда заказ придет в отделение, на ваш адрес придет извещение о посылке. Перед оплатой вы можете оценить состояние коробки: вес, целостность. Вскрывать коробку самостоятельно вы можете только после оплаты заказа. Один заказ может содержать не больше 10 позиций и его стоимость не должна превышать 100 000 р.
      С этим товаром покупают
      Установка инсталляции
      КупитьВ корзине
      6 000 ₽
      Варианты цен
      6 000 ₽
      Подробности
      OLI
      Все товары категории
      Все товары бренда OLI

      Нужна консультация?

      Наши специалисты ответят на любой интересующий вопрос
      Задать вопрос


      Коллекция OLI Oli 120
      Система инсталляции для унитазов OLI Oli 120 100409mSL00 с кнопкой смыва цвет хром глянец система инсталляции для унитазов oli oli 120 100409msl00 с кнопкой смыва цвет хром глянец система инсталляции для унитазов oli oli 120 100409msl00 с кнопкой смыва цвет хром глянец система инсталляции для унитазов oli oli 120 100409msl00 с кнопкой смыва цвет хром глянец
      Система инсталляции для унитазов OLI Oli 120 100409mSL00 с кнопкой смыва цвет хром глянец
      Под заказ
      Арт.: 100409mSL00
      26 032 ₽
      /шт
      Под заказ
      Наши менеджеры обязательно свяжутся с вами и уточнят условия заказа
      Под заказ
      Наши менеджеры обязательно свяжутся с вами и уточнят условия заказа
      Инсталляция для унитаза OLI Oli 120 OLIPure 152972 Sanitarblok mechanic инсталляция для унитаза oli oli 120 olipure 152972 sanitarblok mechanic инсталляция для унитаза oli oli 120 olipure 152972 sanitarblok mechanic
      Инсталляция для унитаза OLI Oli 120 OLIPure 152972 Sanitarblok mechanic
      Под заказ
      Арт.: CR14000880780
      26 030 ₽
      /шт
      Под заказ
      Наши менеджеры обязательно свяжутся с вами и уточнят условия заказа
      Под заказ
      Наши менеджеры обязательно свяжутся с вами и уточнят условия заказа

      Вас заинтересует в бренде OLI
      Система инсталляции для унитазов OLI Expert Evo/Speed 721803 система инсталляции для унитазов oli expert evo/speed 721803
      Система инсталляции для унитазов OLI Expert Evo/Speed 721803
      Осталось 1 шт
      Арт.: 721803
      31 974 ₽
      /шт
      КупитьВ корзине
      КупитьВ корзине
      Система инсталляции для унитазов OLI Oli 80 с кнопкой смыва Slim система инсталляции для унитазов oli oli 80 с кнопкой смыва slim система инсталляции для унитазов oli oli 80 с кнопкой смыва slim система инсталляции для унитазов oli oli 80 с кнопкой смыва slim система инсталляции для унитазов oli oli 80 с кнопкой смыва slim
      Система инсталляции для унитазов OLI Oli 80 с кнопкой смыва Slim
      Более 15 шт
      Арт.: 300572mSl00
      31 938 ₽
      /шт
      КупитьВ корзине
      КупитьВ корзине
      Система инсталляции для унитазов OLI Eco Oli 80 eco 886914 Sanitarblock mechanic система инсталляции для унитазов oli eco oli 80 eco 886914 sanitarblock mechanic
      Система инсталляции для унитазов OLI Eco Oli 80 eco 886914 Sanitarblock mechanic
      Под заказ
      Арт.: 886914
      18 003 ₽
      /шт
      Под заказ
      Наши менеджеры обязательно свяжутся с вами и уточнят условия заказа
      Под заказ
      Наши менеджеры обязательно свяжутся с вами и уточнят условия заказа
      Система инсталляции для унитазов OLI Oli 120 100409mSL00 с кнопкой смыва цвет хром глянец система инсталляции для унитазов oli oli 120 100409msl00 с кнопкой смыва цвет хром глянец система инсталляции для унитазов oli oli 120 100409msl00 с кнопкой смыва цвет хром глянец система инсталляции для унитазов oli oli 120 100409msl00 с кнопкой смыва цвет хром глянец
      Система инсталляции для унитазов OLI Oli 120 100409mSL00 с кнопкой смыва цвет хром глянец
      Под заказ
      Арт.: 100409mSL00
      26 032 ₽
      /шт
      Под заказ
      Наши менеджеры обязательно свяжутся с вами и уточнят условия заказа
      Под заказ
      Наши менеджеры обязательно свяжутся с вами и уточнят условия заказа
      Система инсталляции для унитазов OLI Oli 80 300572mGB00 с кнопкой смыва цвет хром глянец система инсталляции для унитазов oli oli 80 300572mgb00 с кнопкой смыва цвет хром глянец система инсталляции для унитазов oli oli 80 300572mgb00 с кнопкой смыва цвет хром глянец система инсталляции для унитазов oli oli 80 300572mgb00 с кнопкой смыва цвет хром глянец
      Система инсталляции для унитазов OLI Oli 80 300572mGB00 с кнопкой смыва цвет хром глянец
      Под заказ
      Арт.: 300572mGB00
      30 708 ₽
      /шт
      Под заказ
      Наши менеджеры обязательно свяжутся с вами и уточнят условия заказа
      Под заказ
      Наши менеджеры обязательно свяжутся с вами и уточнят условия заказа
      Система инсталляции для унитазов OLI Oli 80 300572mGM00 с кнопкой смыва цвет хром глянец система инсталляции для унитазов oli oli 80 300572mgm00 с кнопкой смыва цвет хром глянец система инсталляции для унитазов oli oli 80 300572mgm00 с кнопкой смыва цвет хром глянец система инсталляции для унитазов oli oli 80 300572mgm00 с кнопкой смыва цвет хром глянец
      Система инсталляции для унитазов OLI Oli 80 300572mGM00 с кнопкой смыва цвет хром глянец
      Под заказ
      Арт.: 300572mGM00
      30 708 ₽
      /шт
      Под заказ
      Наши менеджеры обязательно свяжутся с вами и уточнят условия заказа
      Под заказ
      Наши менеджеры обязательно свяжутся с вами и уточнят условия заказа
      Система инсталляции для унитазов OLI Quadra 280490mRI00 с кнопкой смыва цвет хром глянец система инсталляции для унитазов oli quadra 280490mri00 с кнопкой смыва цвет хром глянец система инсталляции для унитазов oli quadra 280490mri00 с кнопкой смыва цвет хром глянец система инсталляции для унитазов oli quadra 280490mri00 с кнопкой смыва цвет хром глянец
      Система инсталляции для унитазов OLI Quadra 280490mRI00 с кнопкой смыва цвет хром глянец
      Под заказ
      Арт.: 280490mRi00
      35 084 ₽
      /шт
      Под заказ
      Наши менеджеры обязательно свяжутся с вами и уточнят условия заказа
      Под заказ
      Наши менеджеры обязательно свяжутся с вами и уточнят условия заказа
      Инсталляция для унитаза OLI Oli 74 OLIPure 152978 Sanitarblock mechanic инсталляция для унитаза oli oli 74 olipure 152978 sanitarblock mechanic
      Инсталляция для унитаза OLI Oli 74 OLIPure 152978 Sanitarblock mechanic
      Под заказ
      Арт.: 152978
      27 032 ₽
      /шт
      Под заказ
      Наши менеджеры обязательно свяжутся с вами и уточнят условия заказа
      Под заказ
      Наши менеджеры обязательно свяжутся с вами и уточнят условия заказа
      Инсталляция для унитаза OLI Quadra 141945 пневматическая, крепления fast-fit инсталляция для унитаза oli quadra 141945 пневматическая, крепления fast-fit
      Инсталляция для унитаза OLI Quadra 141945 пневматическая, крепления fast-fit
      Под заказ
      Арт.: CR10000141945
      31 313 ₽
      /шт
      Под заказ
      Наши менеджеры обязательно свяжутся с вами и уточнят условия заказа
      Под заказ
      Наши менеджеры обязательно свяжутся с вами и уточнят условия заказа
      Инсталляция для унитаза OLI Oli 80 300572mRI00 с кнопкой смыва River инсталляция для унитаза oli oli 80 300572mri00 с кнопкой смыва river инсталляция для унитаза oli oli 80 300572mri00 с кнопкой смыва river инсталляция для унитаза oli oli 80 300572mri00 с кнопкой смыва river инсталляция для унитаза oli oli 80 300572mri00 с кнопкой смыва river
      Инсталляция для унитаза OLI Oli 80 300572mRI00 с кнопкой смыва River
      Под заказ
      Арт.: 300572mRil00
      30 129 ₽
      /шт
      Под заказ
      Наши менеджеры обязательно свяжутся с вами и уточнят условия заказа
      Под заказ
      Наши менеджеры обязательно свяжутся с вами и уточнят условия заказа
      Система инсталляции для унитазов OLI Eco Oli 120 Eco Sanitarblock pneumatic система инсталляции для унитазов oli eco oli 120 eco sanitarblock pneumatic
      Система инсталляции для унитазов OLI Eco Oli 120 Eco Sanitarblock pneumatic
      Под заказ
      Арт.: 879235
      17 858 ₽
      /шт
      Под заказ
      Наши менеджеры обязательно свяжутся с вами и уточнят условия заказа
      Под заказ
      Наши менеджеры обязательно свяжутся с вами и уточнят условия заказа
      Инсталляция для унитаза OLI Oli 74 Plus 601803 инсталляция для унитаза oli oli 74 plus 601803
      Инсталляция для унитаза OLI Oli 74 Plus 601803
      Под заказ
      Арт.: CR11000012436
      34 882 ₽
      /шт
      Под заказ
      Наши менеджеры обязательно свяжутся с вами и уточнят условия заказа
      Под заказ
      Наши менеджеры обязательно свяжутся с вами и уточнят условия заказа
      Инсталляция для унитаза OLI Oli 120 OLIPure 152972 Sanitarblok mechanic инсталляция для унитаза oli oli 120 olipure 152972 sanitarblok mechanic инсталляция для унитаза oli oli 120 olipure 152972 sanitarblok mechanic
      Инсталляция для унитаза OLI Oli 120 OLIPure 152972 Sanitarblok mechanic
      Под заказ
      Арт.: CR14000880780
      26 030 ₽
      /шт
      Под заказ
      Наши менеджеры обязательно свяжутся с вами и уточнят условия заказа
      Под заказ
      Наши менеджеры обязательно свяжутся с вами и уточнят условия заказа
      Система инсталляции для унитазов OLI Oli 80 300573pKA00 с кнопкой смыва цвет хром глянец система инсталляции для унитазов oli oli 80 300573pka00 с кнопкой смыва цвет хром глянец система инсталляции для унитазов oli oli 80 300573pka00 с кнопкой смыва цвет хром глянец система инсталляции для унитазов oli oli 80 300573pka00 с кнопкой смыва цвет хром глянец
      Система инсталляции для унитазов OLI Oli 80 300573pKA00 с кнопкой смыва цвет хром глянец
      Под заказ
      Арт.: 300573pKA00
      26 720 ₽
      /шт
      Под заказ
      Наши менеджеры обязательно свяжутся с вами и уточнят условия заказа
      Под заказ
      Наши менеджеры обязательно свяжутся с вами и уточнят условия заказа
      Инсталляция для унитаза OLI Expert plus 721703 инсталляция для унитаза oli expert plus 721703
      Инсталляция для унитаза OLI Expert plus 721703
      Под заказ
      Арт.: CR13000048171
      28 166 ₽
      /шт
      Под заказ
      Наши менеджеры обязательно свяжутся с вами и уточнят условия заказа
      Под заказ
      Наши менеджеры обязательно свяжутся с вами и уточнят условия заказа
      Система инсталляции для унитазов OLI Eco Oli 120 eco 879236 Sanitarblock mechanic система инсталляции для унитазов oli eco oli 120 eco 879236 sanitarblock mechanic
      Система инсталляции для унитазов OLI Eco Oli 120 eco 879236 Sanitarblock mechanic
      Под заказ
      Арт.: 879236
      18 931 ₽
      /шт
      Под заказ
      Наши менеджеры обязательно свяжутся с вами и уточнят условия заказа
      Под заказ
      Наши менеджеры обязательно свяжутся с вами и уточнят условия заказа
      Инсталляция для унитаза OLI Quadra Sanitarblock 280490m инсталляция для унитаза oli quadra sanitarblock 280490m инсталляция для унитаза oli quadra sanitarblock 280490m инсталляция для унитаза oli quadra sanitarblock 280490m
      Инсталляция для унитаза OLI Quadra Sanitarblock 280490m
      Под заказ
      Арт.: CR10000173352
      31 740 ₽
      /шт
      Под заказ
      Наши менеджеры обязательно свяжутся с вами и уточнят условия заказа
      Под заказ
      Наши менеджеры обязательно свяжутся с вами и уточнят условия заказа
      Система инсталляции OLI Oli 74 601801 для унитазов, механический слив система инсталляции oli oli 74 601801 для унитазов, механический слив система инсталляции oli oli 74 601801 для унитазов, механический слив система инсталляции oli oli 74 601801 для унитазов, механический слив
      Система инсталляции OLI Oli 74 601801 для унитазов, механический слив
      Под заказ
      Арт.: 601801
      24 099 ₽
      /шт
      Под заказ
      Наши менеджеры обязательно свяжутся с вами и уточнят условия заказа
      Под заказ
      Наши менеджеры обязательно свяжутся с вами и уточнят условия заказа
      Система инсталляции для унитазов OLI Oli 80 300573 с кнопкой смыва Salina система инсталляции для унитазов oli oli 80 300573 с кнопкой смыва salina система инсталляции для унитазов oli oli 80 300573 с кнопкой смыва salina система инсталляции для унитазов oli oli 80 300573 с кнопкой смыва salina система инсталляции для унитазов oli oli 80 300573 с кнопкой смыва salina
      Система инсталляции для унитазов OLI Oli 80 300573 с кнопкой смыва Salina
      Под заказ
      Арт.: 300573pSA00
      26 720 ₽
      /шт
      Под заказ
      Наши менеджеры обязательно свяжутся с вами и уточнят условия заказа
      Под заказ
      Наши менеджеры обязательно свяжутся с вами и уточнят условия заказа
      Инсталяции в туалет OLI Expert Evo/Speed 721802 механика инсталяции в туалет oli expert evo/speed 721802 механика инсталяции в туалет oli expert evo/speed 721802 механика
      Инсталяции в туалет OLI Expert Evo/Speed 721802 механика
      Под заказ
      Арт.: CR13000017494
      26 208 ₽
      /шт
      Под заказ
      Наши менеджеры обязательно свяжутся с вами и уточнят условия заказа
      Под заказ
      Наши менеджеры обязательно свяжутся с вами и уточнят условия заказа
      Инсталяции в туалетOLI Oli 74 601804 пневматический слив инсталяции в туалетoli oli 74 601804 пневматический слив
      Инсталяции в туалетOLI Oli 74 601804 пневматический слив
      Под заказ
      Арт.: CR11000023498
      25 228 ₽
      /шт
      Под заказ
      Наши менеджеры обязательно свяжутся с вами и уточнят условия заказа
      Под заказ
      Наши менеджеры обязательно свяжутся с вами и уточнят условия заказа
      Инсталяции в туалет OLI Oli 80 300573p инсталяции в туалет oli oli 80 300573p
      Инсталяции в туалет OLI Oli 80 300573p
      Под заказ
      Арт.: CR01000178157
      21 516 ₽
      /шт
      Под заказ
      Наши менеджеры обязательно свяжутся с вами и уточнят условия заказа
      Под заказ
      Наши менеджеры обязательно свяжутся с вами и уточнят условия заказа
      Инсталляция для унитаза OLI Oli 80 300572m инсталляция для унитаза oli oli 80 300572m
      Инсталляция для унитаза OLI Oli 80 300572m
      Под заказ
      Арт.: CR01000172957
      26 524 ₽
      /шт
      Под заказ
      Наши менеджеры обязательно свяжутся с вами и уточнят условия заказа
      Под заказ
      Наши менеджеры обязательно свяжутся с вами и уточнят условия заказа
      Инсталляция для унитаза OLI Oli 74 Simflex инсталляция для унитаза oli oli 74 simflex
      Инсталляция для унитаза OLI Oli 74 Simflex
      Под заказ
      Арт.: CR11000023480
      16 856 ₽
      /шт
      Под заказ
      Наши менеджеры обязательно свяжутся с вами и уточнят условия заказа
      Под заказ
      Наши менеджеры обязательно свяжутся с вами и уточнят условия заказа
      Инсталляция для унитаза OLI Expert Evo/Speed 721705 пневматика инсталляция для унитаза oli expert evo/speed 721705 пневматика инсталляция для унитаза oli expert evo/speed 721705 пневматика
      Инсталляция для унитаза OLI Expert Evo/Speed 721705 пневматика
      Под заказ
      Арт.: CR13000048171
      32 050 ₽
      /шт
      Под заказ
      Наши менеджеры обязательно свяжутся с вами и уточнят условия заказа
      Под заказ
      Наши менеджеры обязательно свяжутся с вами и уточнят условия заказа
      Каталог
      Акции
      Услуги
      Бренды
      Компания
      О компании
      Новости
      Отзывы
      Контакты
      Партнеры
      Сертификаты
      Информация
      Магазины
      Условия оплаты
      Условия доставки
      Гарантия на товар
      Реквизиты
      Политика
      Помощь
      Условия оплаты
      Условия доставки
      Гарантия на товар
      Вопрос-ответ
      Обзоры
      Подписаться на рассылку
      +7 (800) 201-87-48
      Заказать звонок
      info@ceramicplus.ru
      Краснодар, Краснофлотская улица, 13
      • Вконтакте
      • Telegram
      • YouTube
      • Viber
      • Viber
      • WhatsApp
      • Яндекс.Дзен
      Все торговые марки каталога принадлежат их владельцам. Копирование составляющих частей сайта в какой бы то ни было форме без разрешения владельца авторских прав запрещено.
      Данный интернет-магазин носит исключительно информационный характер и ни при каких условиях информационные материалы, размеры, фото и цены сайта не являются публичной офертой, определяемой положениями Статьи 437 Гражданского кодекса РФ.


      2025 © CeramicPlus.ru – интернет-магазин Сантехники и Аксессуаров.